Квартира на El Sotillo, c 55 m² построен, 49 m² Полезная площадь , 1 спальня , 1 Ванные комнаты , В хорошем состоянии, Этаж 2, 1 Террасы, 6 m² от tерраса, Лифт, Частный бассейн
КВАРТИРА В КАСТЕЛЬ-ДЕ-ФЕРРО (ГРАНАДА)
Расположен в центре Сотильо. Рядом со многими муниципальными услугами, аптекой, мясником, банками ...
Здание с прямым доступом к Пасео Маритиму и общественному бассейну.
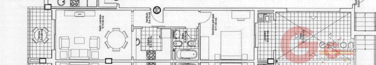
Квартира небольшая, с одной спальней, идеально подходит для людей, одиноких или пар без детей. Спальня просторная, американская кухня, но независимо от гостиной, она имеет террасу, ванную комнату и еще одну террасу, которая используется для облегчения и как прачечная.
Если вы хотите получить дополнительную информацию об этой собственности или договориться о посещении, не стесняйтесь обращаться к нам. Вы можете сделать это по электронной почте info@gestioninternacional.com, по телефону 673 831 092 или непосредственно в нашем офисе, расположенном у входа в урбанизацию Монте-де-лос-Альмендрос.
И ЕСЛИ ВАМ НУЖНА ИПОТЕКА ДЛЯ ПОКУПКИ ВАШЕГО ДОМА, МЫ БЕСПЛАТНО БЕСПЛАТНЫМ ОБРАБОТЧИМ ДЛЯ ВАС, ПОПРОСИТЕ У НАС ИНФОРМАЦИЮ.
